| ホーム>岡山畜産便り > 岡山畜産便り2002年3月号 > 新岡山県営食肉市場の整備 | 



*ISO9000S:品質の管理・保証に関する国際規格のことで,認証取得することは,品質管理システムを揃え,高品質の品質をどんどん良くしていくシステムを持っている食肉市場であるといえます。
 岡山県は,瀬戸大橋の架橋,岡山空港の開港に加えて,南北東西の高速道路網の整備が完了し中国四国の交通の要衝として広域拠点性が高まるなか,消費需要の高度化,多様化に対応した第3次産業の発展が期待されており,食肉流通においても交通網の発達を契機に流通量の増大と消費ニーズの多様化など量,質ともに県内及び京阪神への販売流通の拠点として期待されています。
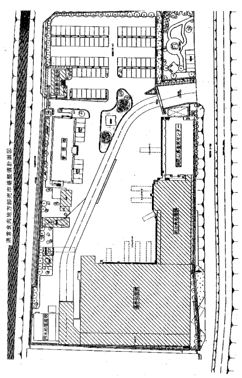
 県営食肉市場は卸売市場法に基づく地方卸売市場として,県内生産される肉牛,豚肉の大部分を扱う岡山県の基幹処理施設として,「多様化する21世紀の食肉流通情勢に対応できる活力ある市場づくり」を目指して整備を進めている。
 @ 多様化,高度化する食肉流通情勢に対応できる処理販売機能を備えた市場
 A 市場内の関係者が働く意欲と希望を持てる市場
 B 周辺地域及び消費者と調和し,県産食肉のすばらしさが実感できる市場



21世紀の食肉流通環境に即応するため,最新のカット処理機能を備えた衛生的で合理的な部分肉処理施設を卸売施設に併設する。

